
这是一套复式结构的房子,总面积仅120平,空间着实不算大。对于即将步入婚姻殿堂的两位业主而言,在装修风格的选择上,可谓是各有偏好。男士觉得空间有限,北欧极简风格能让空间显得开阔,家里也会更明亮;而女士钟情于美式风格,认为婚房就该洋气些。经过一番长时间的纠结考量,最终还是尊重了女士的意见。

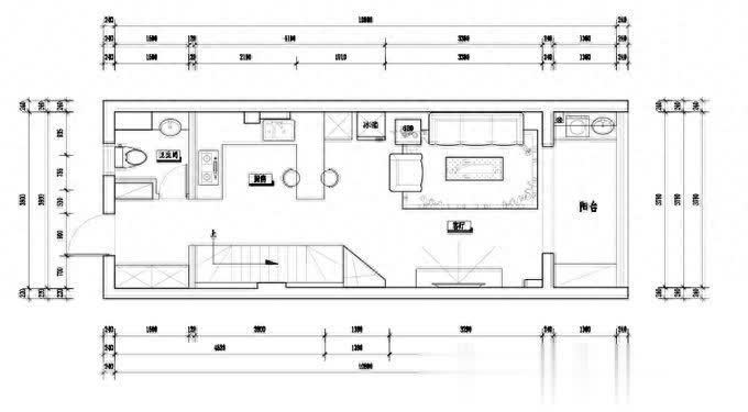
▲一楼图纸,户型其实很方正,进门有单独门厅,右手楼梯,左手依次从进门口是卫生间,厨房以及客厅,还带一个生活阳台,基本一楼作为休闲使用。因为原始户型的厨房很小,而且是个暗厨,所以为了有一个吃饭的餐厅,做了开放式设计,这样延伸的岛台刚好作为餐桌使用,视觉和光线都得到了拓展。这也成为了进门的亮点,反正几乎不怎么做饭

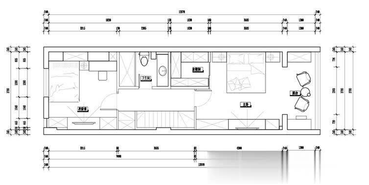
▲二楼就是卧室空间了,主卧和次卧带一个衣帽间和单独卫生间。

▲一楼进门门厅空间,右手顶天立地收纳柜兼顾鞋柜收纳,左手牺牲卫生间墙体做了换鞋凳,满足进门换鞋挂衣服以及放包包的需求。蓝色的布艺垫子以及抱枕装饰,视觉上有家的温馨,进门一块美式地垫保证进门换鞋的干净

一楼进门处,右手边是顶天立地的收纳柜,兼具鞋柜功能;左手边则是利用牺牲卫生间墙体打造的换鞋凳,充分满足了进门换鞋、挂衣服以及放置包包的需求。蓝色的布艺垫子和抱枕起到了装饰作用,让视觉上充满家的温馨,进门处放置一块美式地垫,确保换鞋时的干净整洁。

▲门厅左手的换鞋凳以及卫生间上海配资之家,因为一楼卫生间没有设计洗澡区域,所以墙砖半截墙和蓝色的防水漆层次设计,这样视觉清爽多了。轻美式里头加点北欧风元素,也算是对男业主的安慰了
财盛证券提示:文章来自网络,不代表本站观点。